Majken a Christoffer se během svého pobytu v Georgii zamilovali do typické „americké“ verandy a rozhodli se mít jednou vlastní. Po návratu do Kodaně hledali místo pro svůj víkendový dům a objevili pozemek v Rågeleje, přímořské vesnici severně od Helsingøru.
Na místo jednoho velkého domu, který by pozemku dominoval, s architektem vymysleli komplex tří budov (hlavní dům, chata pro hosty a skleník). Domky žijí v symbióze s okolním lesem a přírodou, s níž jsou velkoryse propojeny průhlednými stěnami i střechou. "Chtěli jsme v hlavní budově dostatek denního světla a vidět oblohu a koruny stromů,“ vysvětluje majitel, proč do střechy zasadil hned dvě „trojitá“ okna VELUX 3v1.
Manželé Majken a Christoffer provozují společnost The Greenery, která vyrábí dřevěné domky a skleníky. Je to podnik zrozený z vášně pro kutily, tradiční dřevěné stavby a přírodu. Navzdory tomu, že tedy byli ostřílení kutilové se spoustou nápadů a dům si chtěli postavit sami, věděli, že potřebují architekta, který by jim ho pomohl navrhnout. Při hledání narazili na práci Martina Kallesø z ateliéru Kallesø Arkitekter a domluvili si schůzku na místě. Architekt zpočátku váhal kvůli nízkému rozpočtu, ale postupně se nadchl pro koncept osady malých domků a zastřešené verandy podepřené kmeny stromů.
Foto: Velux
Pozemek začíná jako úzký pruh země, který byl pozůstatkem staré venkovské cesty, svědčící o historii regionu. Zatímco příjezdová cesta byla viditelná, samotné místo, mýtina obklopená impozantními stromy, se vynořovalo pomalu.
Foto: Velux
Střešní okna pro pozorování oblohy
Rozhodnutí postavit tři budovy mělo i praktické výhody. Děti Majkena a Christoffera jsou již dospělé a cení si soukromí při návštěvě rodičů na venkově. Chůze tam a zpět mezi třemi objekty, možnost sprchování venku a stolování na verandě, to vše přispívá k jednoduchému venkovskému životnímu stylu.
Foto: Velux
Hlavní budova má samozřejmě v koupelně bojler na teplou vodu. Je vytápěna kamny na dřevo a elektrickým podlahovým topením. Navzdory svým malým rozměrům jsou kamna na dřevo velmi výhřevná a Majken a Christoffer otevírají i střešní okna, aby místnost účinně vyvětrali. "Chtěli jsme v hlavní budově dostatek denního světla a vidět oblohu a koruny stromů. Střešní okna VELUX byla jasná volba. Rozhodl jsem se pro menší formát řady 3v1 se třemi samostatnými křídly v jediném rámu. Střešní okna jsou dálkově ovládaná, zavírají se automaticky, když prší, a fungují na solární pohon, takže není potřeba kabeláž," chválí Christoffer.
Foto: Velux
Samostatný dům pro hosty není nutné vytápět, když se nepoužívá, a nemá ani vodoinstalaci, proto nevyžadoval stavební povolení. Zatímco Martin pracoval na získání stavebního povolení pro hlavní budovu, Christoffer podle jeho plánů postavil dům pro hosty. A také na jižním okraji pozemku skleník, středně velkou variantu z vlastní produktové řady The Greenery.
Foto: VeluxPřestože hlavní koncept návrhu zůstal nedotčen, během výstavby došlo i na úpravy. Christoffer si uvědomil, že chce prosklený roh obývacího pokoje, který by do interiéru pustil paprsky slunečního světla kromě shora i z jihozápadu. A přibylo i malé kulaté okénko vysoko ve štítu, které nechává sluneční paprsek putovat po stěnách jako sluneční hodiny. "Kulatá okna se mi líbí, vyvažují racionálnější aspekty návrhu. Byla pro mě výzvou k instalaci, protože jsem s kulatými okny nikdy předtím nepracoval," pokračuje Christoffer.
Foto: Velux
Na poslední chvíli byly provedeny změny i na verandě. Přestože byla od počátku stěžejní součástí návrhu, Martin a Christoffer později rozhodli o umístění každého sloupu a sami je i vztyčili. Martin trval na použití celých kmenů stromů, o kterých Christoffer zpočátku pochyboval, ale později byl za toto řešení rád: „Když jsme postavili sloupy z kmenů stromů, veranda se proměnila ze struktury podobné přístřešku pro auta v něco poetického, organického a krásného." A architekt Martin Kallesø souhlasí: „Veranda se svými stromovými sloupy promění skromný dům v něco pozoruhodného."
Foto: Velux
Místo nazelenalých tónů růžová…
Architekt si původně představoval pro budovy klidné nazelenalé tóny, ale Majken a Christoffer se rozhodli pro kontrastní růžovou, kterou pro jejich společnost The Greenery navrhl specialista na povrchový design. Podle Majkena a Christoffera odstín růžové nechává vyniknout „všechnu svěží zeleň a vše, co nemůžeme ovlivnit“.
Martin, který na svých architektonických projektech nikdy nepoužil tak jasnou barvu, byl zpočátku kvůli výběru nesvůj. Jakmile však zjistil, že růžový odstín připomíná barvu borovic pod jejich kůrou, zapadla mu barva do kontextu.
Foto: Velux
"Svým designem zachytil Martin Kallesø sen naší rodiny o venkovském bydlení. Není to standardní architektonický projekt, kde je vše předem přesně navrženo, naplánováno a provedeno, ale spíše hřiště pro experimentování s novými nápady," říká Christoffer a architekt Martin Kallesø potvrzuje: "Nemáme dopředu daný styl; naše architektura se rodí z omezení, požadavků, rozpočtu, lokality a širšího kontextu, ve kterém navrhujeme. Věříme v architekturu v souvislostech, vyrobenou z krásných odolných materiálů, které umějí stárnout s grácií."
Foto: VeluxPříčný řez středem hlavní budovy. Dvě střešní okna VELUX 3v1 jsou umístěna v blízkosti hřebene, nad jídelním stolem. Dvoje francouzské dveře spojují přes interiér přední terasu se zadní krytou verandou.
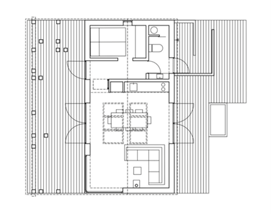
Foto: VeluxPůdorys přízemí. Vše, co potřebujete, na několika metrech čtverečních.
Další informace naleznete na www.velux.cz






